產品簡(jiǎn)介
黄瓜视频APP下载公司GJXC-型高(gāo)效聚結(jié)型油水分離器是(shì)根據粗粒化原理(lǐ)及淺池理論研製(zhì)而成的一種新(xīn)型油水分離(lí)器,該設備處理效率(lǜ)高(>90%),停留時間短(為常規分離設備的35~50%),占地麵積少(為常規分離(lí)設備的(de)50%),采用壓力式(shì)密閉運行,運行平穩、安(ān)全可靠(kào),收油排(pái)泥(ní)方便。適用於流量波動的來水,便於實現自動化控製(zhì)。
產品特性
1.設計合理,密閉(bì)運行無汙染
2.雙級分離區,促進(jìn)細小油珠及固體小顆粒的去除。
3.耐腐蝕的(de)聚結材料合理級配,有利於油(yóu)珠聚結。
型號說明

技術參數

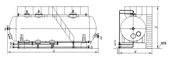
安裝尺(chǐ)寸


你所在的位置: